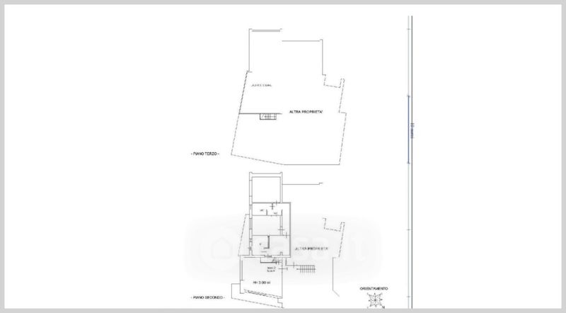
Appartamento in vendita Via Nicodemo Iadanza , Campolattaro
Salva
Casa.it
1/37
  • Street View
  • Map