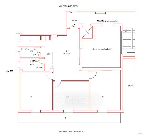
Appartamento in vendita Via Principe di Piemonte , Casoria
Salva
Casa.it
1/32
  • Street View
  • Map