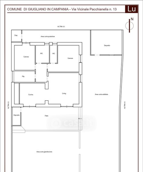
Appartamento in vendita Strada Vicinale Pacchianella , Giugliano in Campania
Salva
Casa.it
1/32
  • Street View
  • Map