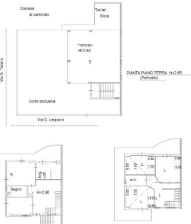
Appartamento in vendita Via Giacomo Leopardi , Gricignano di Aversa
Salva
Casa.it
1/21
  • Street View
  • Map