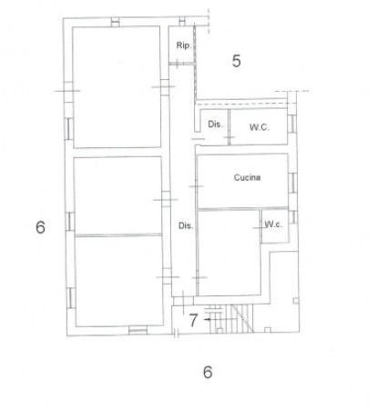
Appartamento in vendita Via Linara 2, Limatola
Salva
Casa.it
1/19
  • Street View
  • Map