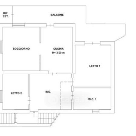
Appartamento in vendita Via Marano Pianura 265, Marano di Napoli
Salva
Casa.it
1/19
  • Street View
  • Map