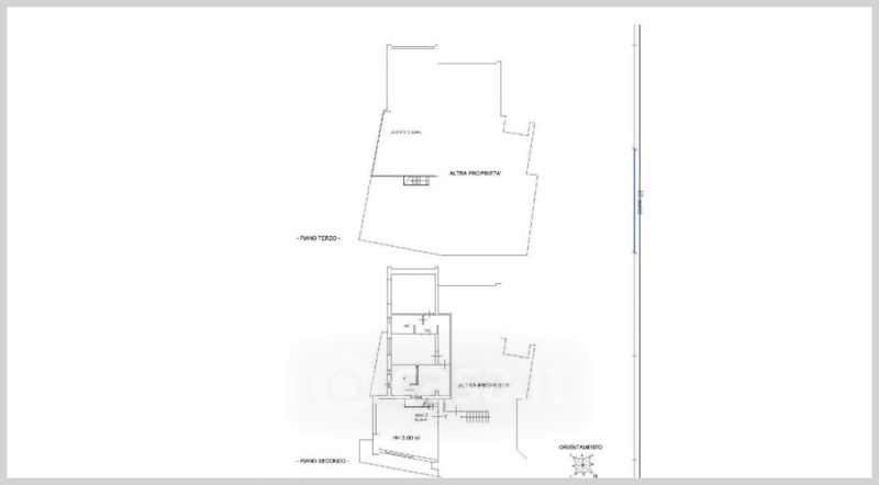
Appartamento in vendita Via Crucis , Monteforte Irpino
Salva
Casa.it
1/32
  • Street View
  • Map