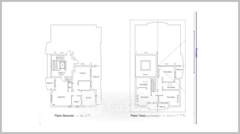
Appartamento in vendita Via San Michele , Montella
Salva
Casa.it
1/37
  • Street View
  • Map