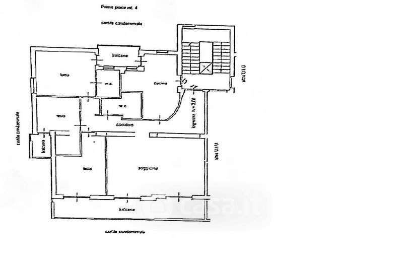
Appartamento in vendita Via Domenico Fontana 25, Napoli
Salva
Casa.it
1/50
  • Street View
  • Map