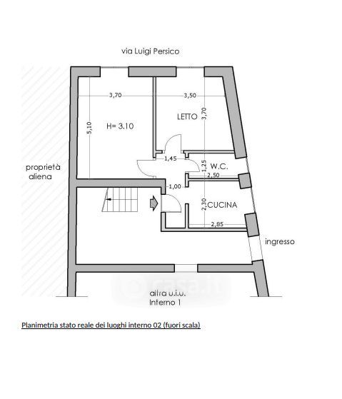
Appartamento in vendita Via Luigi Persico , Napoli
Salva
Casa.it
1/39
  • Street View
  • Map