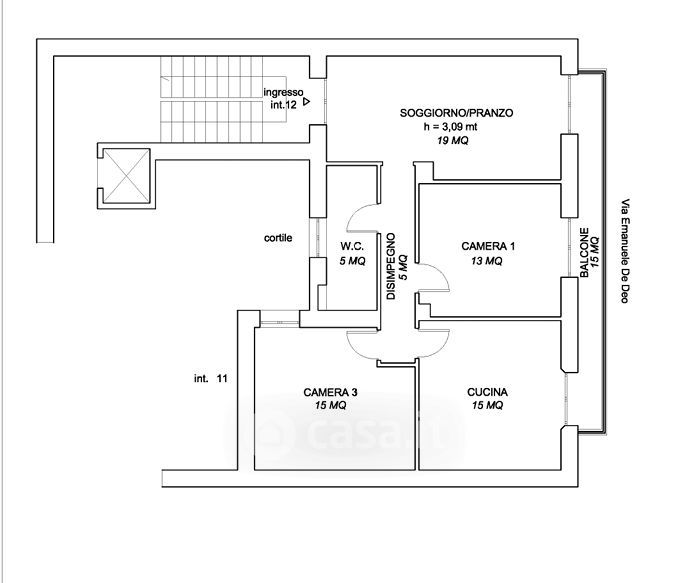
Appartamento in vendita Via Emanuele de Deo , Napoli
Salva
Casa.it
1/31
  • Street View
  • Map