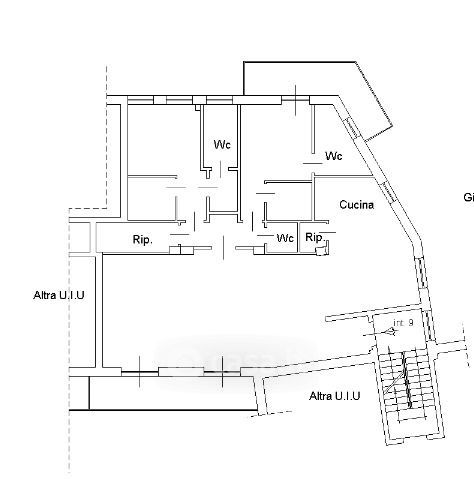
Appartamento in vendita Via Tito Livio 26, Napoli
Salva
Casa.it
1/12
  • Street View
  • Map