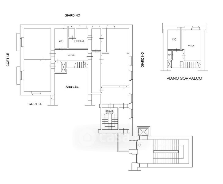
Appartamento in vendita Via Chiaia 149, Napoli
Salva
Casa.it
1/43
  • Street View
  • Map