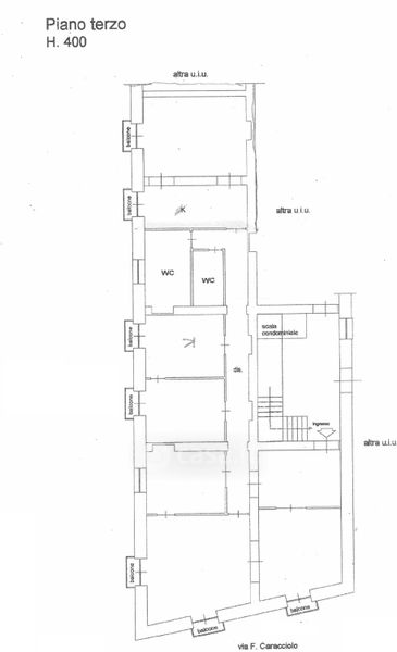
Appartamento in vendita Via Francesco Caracciolo , Napoli
Salva
Casa.it
1/41
  • Street View
  • Map