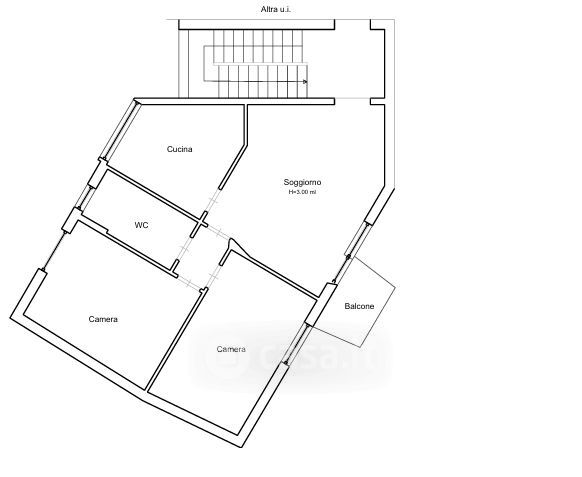
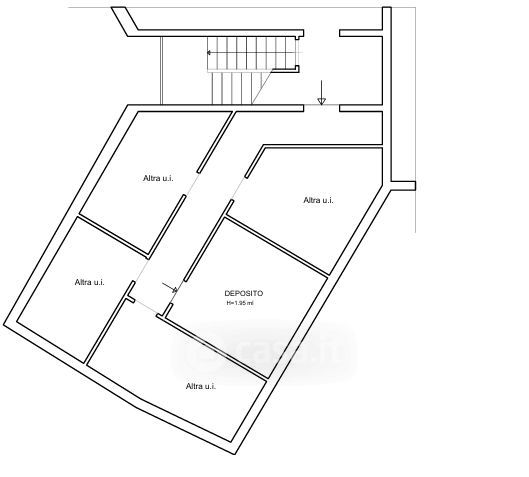
Appartamento in vendita Via Luigi Mercantini , Napoli
Salva
Casa.it
1/17
  • Street View
  • Map