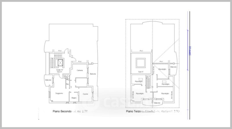
Appartamento in vendita Via Gennaro Aspreno Galante , Napoli
Salva
Casa.it
1/32
  • Street View
  • Map