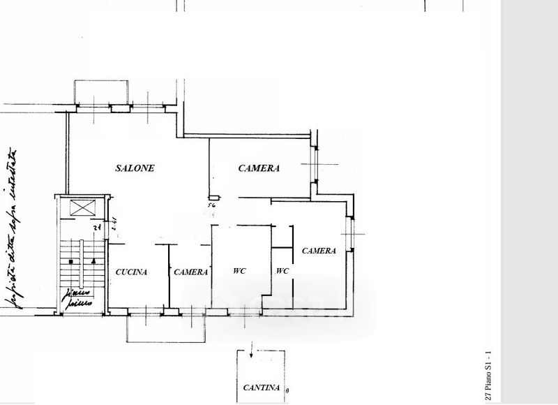
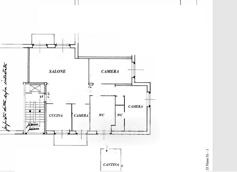
Appartamento in vendita Via Francesco Cilea 112, Napoli
Salva
Casa.it
1/35
  • Street View
  • Map