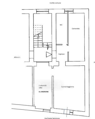
Appartamento in vendita Cupa Carbone , Napoli
Salva
Casa.it
1/12
  • Street View
  • Map