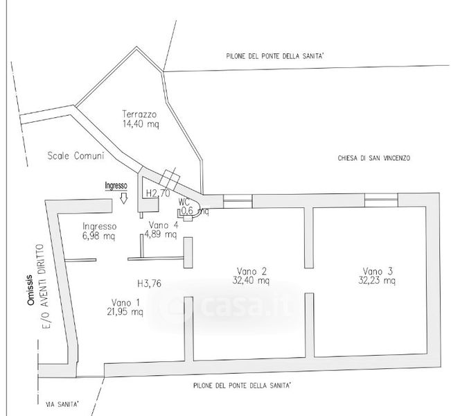
Appartamento in vendita Via Sanità , Napoli
Salva
Contatta l'inserzionista
Casa.it