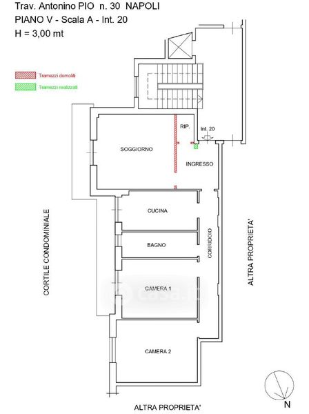
Appartamento in vendita Traversa Antonino Pio , Napoli
Salva
Casa.it
1/32
  • Street View
  • Map