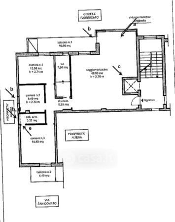
Appartamento in vendita Via Vicinale San Donato , Napoli
Salva
Casa.it
1/23
  • Street View
  • Map