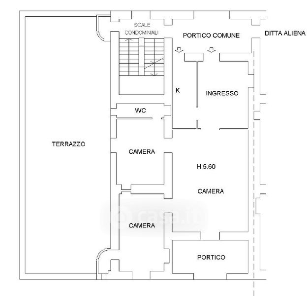
Appartamento in vendita Strada Vicinale Cupa delle Tozzole 3, Napoli
Salva
Casa.it
1/33
  • Street View
  • Map