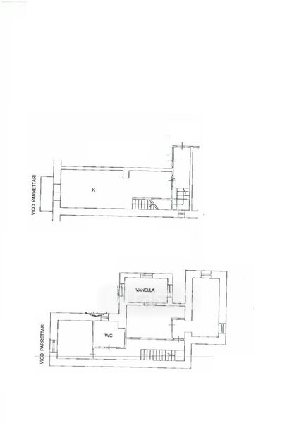
Appartamento in vendita Via Bartolomeo Chioccarelli , Napoli
Salva
Casa.it
1/17
  • Street View
  • Map