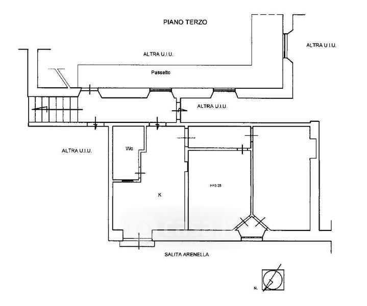
Appartamento in vendita Salita Arenella 21, Napoli
Salva
Casa.it
1/22
  • Street View
  • Map