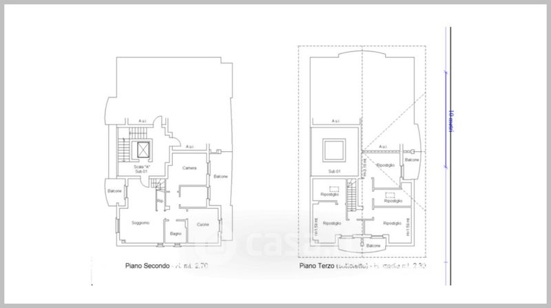
Appartamento in vendita Via Orlando Gennaro , Nocera Inferiore
Salva
Casa.it
1/32
  • Street View
  • Map