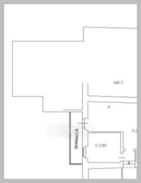
Appartamento in vendita Via Palma , Nola
Salva
Casa.it
1/32
  • Street View
  • Map