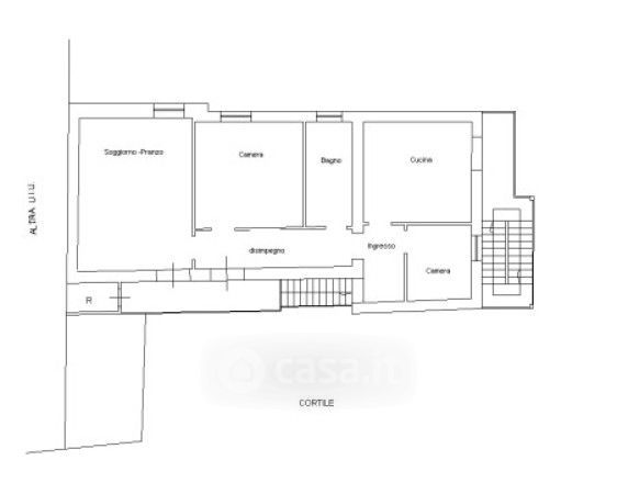
Appartamento in vendita Vico Casa Caliendo 18, Palma Campania
Salva
Casa.it
1/17
  • Street View
  • Map