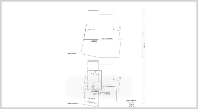
Appartamento in vendita Piazza Roma , Paupisi
Salva
Casa.it
1/32
  • Street View
  • Map