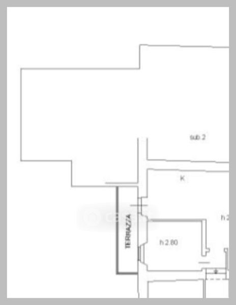
Appartamento in vendita Via Maria Santissima della Pietà , Pellezzano
Salva
Casa.it
1/32
  • Street View
  • Map