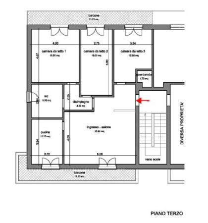
Appartamento in vendita Via Giuseppe Mazzini , Pollena Trocchia
Salva
Casa.it
1/20
  • Street View
  • Map