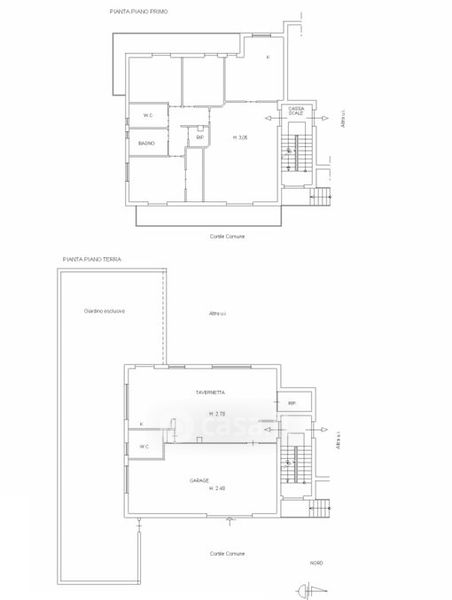
Appartamento in vendita Via Gian Battista Vico , Pomigliano d'Arco
Salva
Casa.it
1/15
  • Street View
  • Map