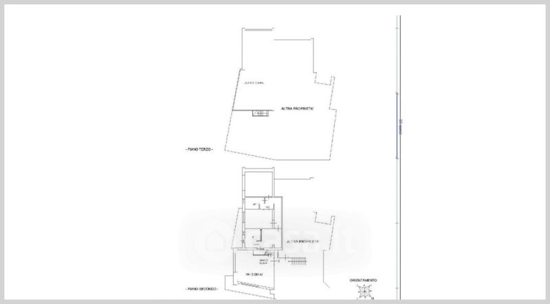
Appartamento in vendita Via Serritiello , Pratola Serra
Salva
Casa.it
1/37
  • Street View
  • Map