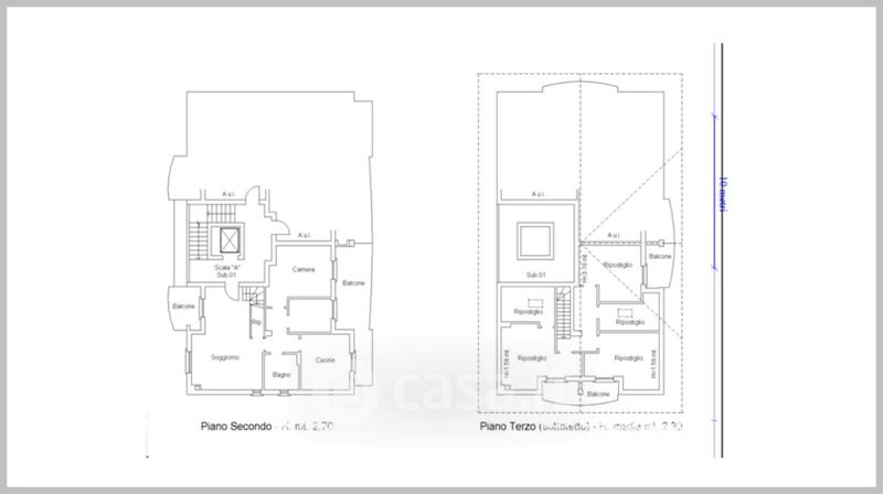
Appartamento in vendita Via Sant' Eustachio , Salerno
Salva
Casa.it
1/32
  • Street View
  • Map