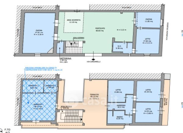
Appartamento in vendita Via Vincenzo Cardarelli , San Cipriano d'Aversa
Salva
Casa.it
1/22
  • Street View
  • Map