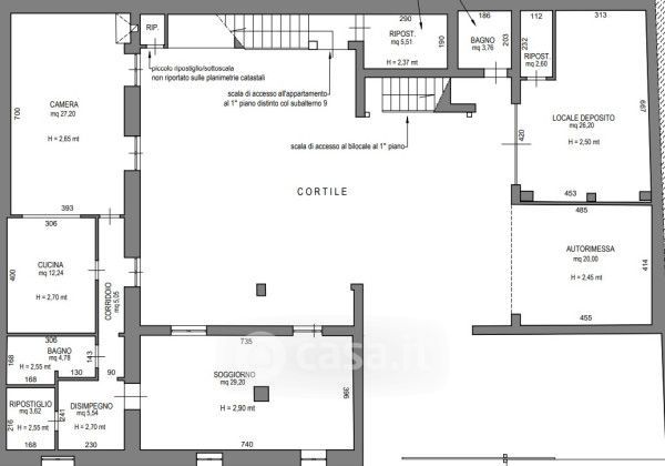
Appartamento in vendita Via G.Garibaldi 25, San Cipriano d'Aversa
Salva
Casa.it
1/18
  • Street View
  • Map