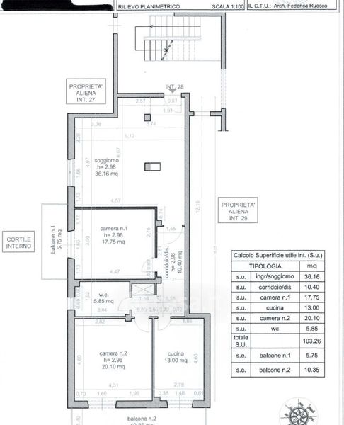
Appartamento in vendita Via Giacomo Brodolini , San Giorgio a Cremano
Salva
Casa.it
1/33
  • Street View
  • Map