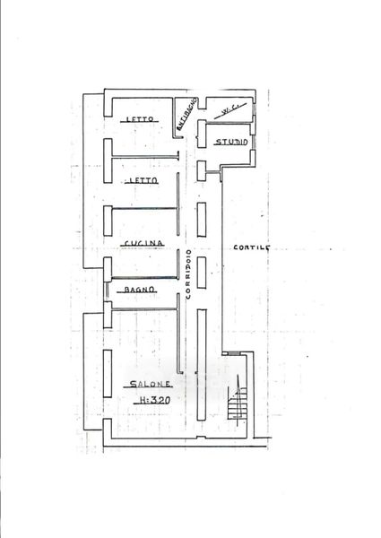
Appartamento in vendita Via Flavio Gioia 21, San Nicola la Strada
Salva
Casa.it
1/44
  • Street View
  • Map