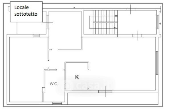
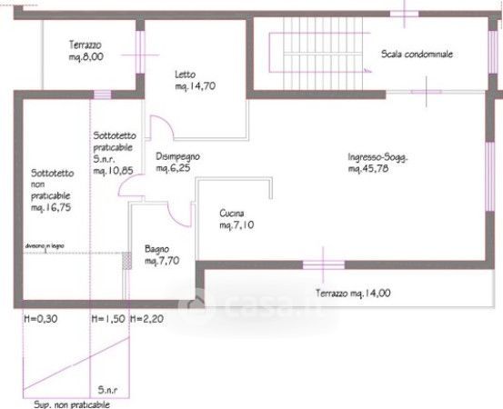
Appartamento in vendita Via della Corte , San Potito Ultra
Salva
Casa.it
1/19
  • Street View
  • Map