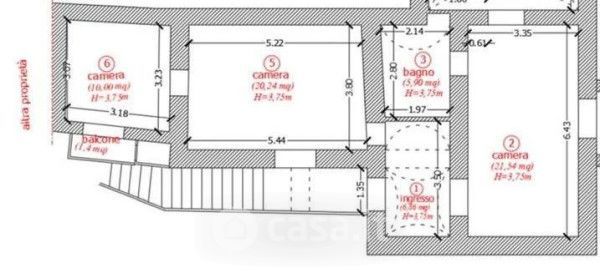
Appartamento in vendita Via San Giuseppe 92, San Valentino Torio
Salva
Casa.it
1/17
  • Street View
  • Map