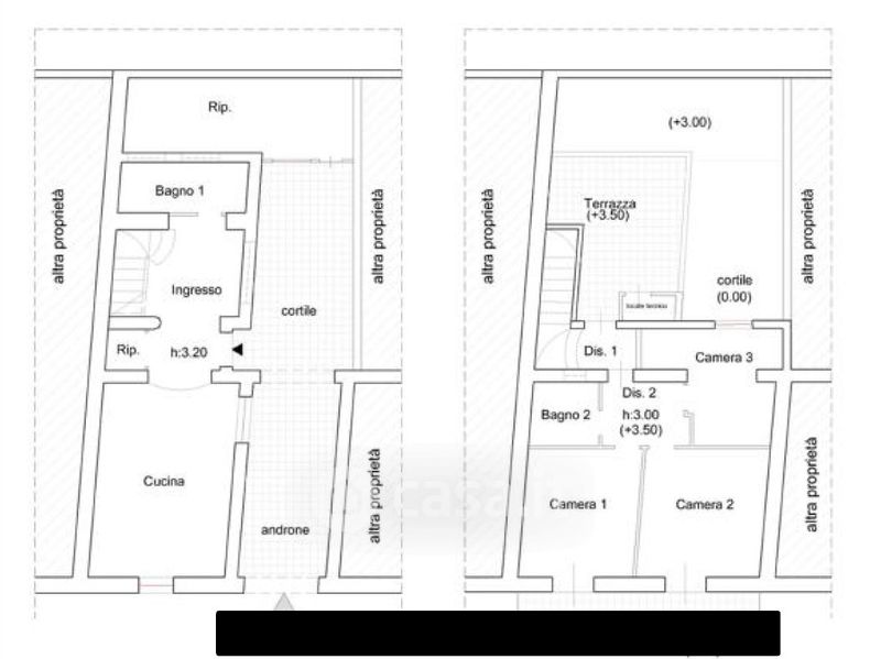
Appartamento in vendita Via G. Amendola , Sant'Antimo
Salva
Casa.it
1/32
  • Street View
  • Map