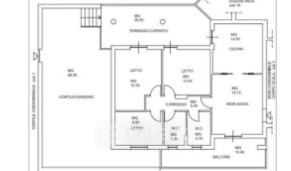
Appartamento in vendita Via San Marco 25, Santa Maria a Vico
Salva
Casa.it
1/18
  • Street View
  • Map