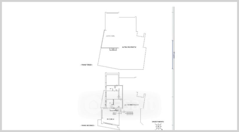
Appartamento in vendita Via Ferdinando 1° d'Aragona , Santa Maria a Vico
Salva
Casa.it
1/37
  • Street View
  • Map