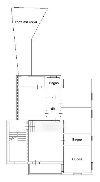
Appartamento in vendita Via Macello 22, Santa Maria a Vico
Salva
Casa.it
1/31
  • Street View
  • Map