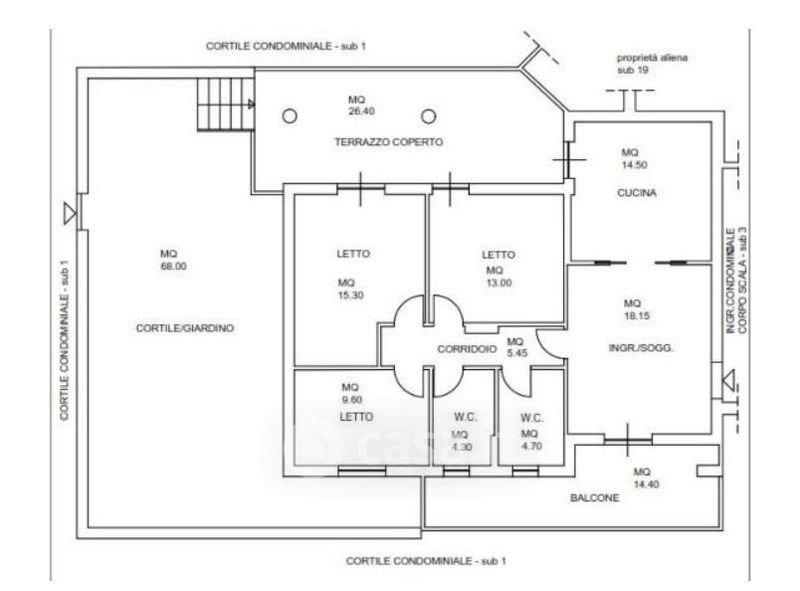
Appartamento in vendita Via San Marco , Santa Maria a Vico
Salva
Casa.it
1/40
  • Street View
  • Map