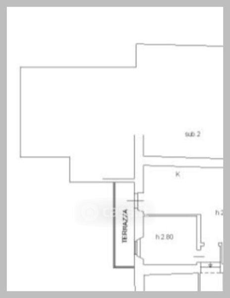
Appartamento in vendita Via Firenze , Santa Maria Capua Vetere
Salva
Casa.it
1/32
  • Street View
  • Map