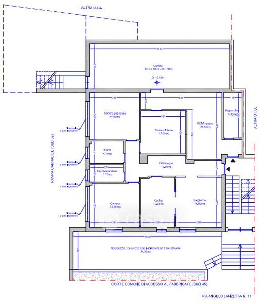
Appartamento in vendita Via Angelo Lanzetta , Sarno
Salva
Casa.it
1/33
  • Street View
  • Map