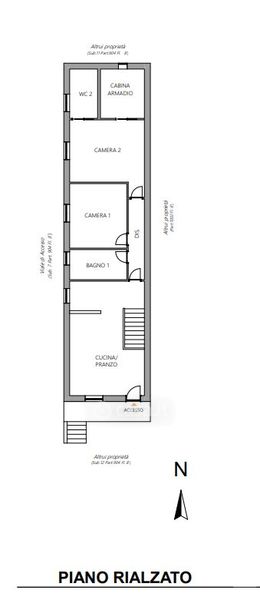
Appartamento in vendita Via Vicinale Ascanio , Scafati
Salva
Casa.it
1/38
  • Street View
  • Map