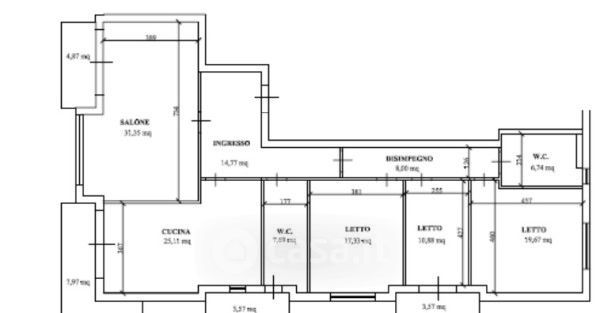
Appartamento in vendita Viale Principe Amedeo , Solofra
Salva
Casa.it
1/18
  • Street View
  • Map