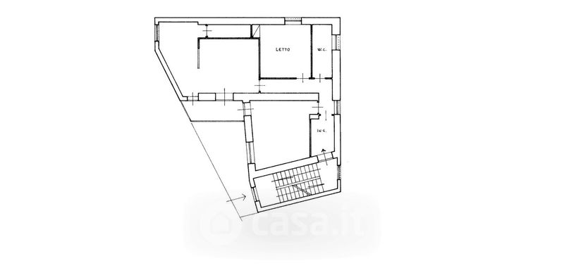
Appartamento in vendita Via Ciro Menotti , Trecase
Salva
Casa.it
1/39
  • Street View
  • Map