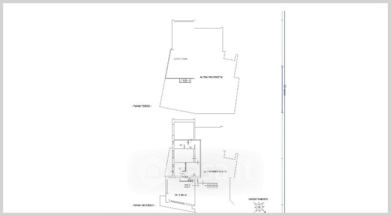
Appartamento in vendita Strada Bianca , Alseno
Salva
Casa.it
1/32
  • Street View
  • Map